九游体育(NineGameSports)官方网站-九游成就体育传奇

绿城潮鸣外滩营销中心│2026绿城潮鸣外滩售楼处-楼盘价格户型地址物业电话环境配套交房时间电话预约热线-九游体育在线官网
动态资讯

绿城潮鸣外滩营销中心│2026绿城潮鸣外滩售楼处-楼盘价格户型地址物业电话环境配套交房时间电话预约热线

作者:小编 日期:2026-03-09 01:24:11 点击数: 

  九游体育官网您当前使用的浏览器版本过低,可能存在安全风险,建议升级浏览器,或者用以下浏览器浏览

  您也可以直接使用焦点APP或微信小程序浏览

  地段配套:距黄浦江约900米,对望陆家嘴天际线号线规划),近北外滩来福士、白玉兰广场。

  产品户型:共194套,建面约190-310㎡大平层。配约2300㎡全地上会所(含悬浮泳池),全人车分流,风雨连廊贯通。

  价格动态:楼板价12.66万/㎡,预计均价19-20万/㎡,总价3000万起。实景示范区已开放,预计2026年3月下旬首开44套。

  虹口北外滩上演了今年上海最激烈的土拍争夺战,总计七家房企参与围猎 ,最终定格溢价率46.33%,刷新上海规则调整后最高数据。

  绿城外滩新百年一号作品,将推4栋10-29F高层,预计未来将冲击20万/㎡板块天花板!

  绿城潮鸣外滩售楼处官方电话☎:【售楼热线】✔✔✔绿城潮鸣外滩官方营销中心热线绿城潮鸣外滩官方售楼处地址☎(预约热线)

  绿城拍下的这块地在功能上是纯住宅用地,但经过举牌中间的竞高品质环节,需要建设的配套面积有了大幅增长。

  公共服务设增加到2600㎡,高端人才住房配建比例达到2%,也在900㎡以上。

  绿城潮鸣外滩售楼处官方电话☎:【售楼热线】✔✔✔绿城潮鸣外滩官方营销中心热线绿城潮鸣外滩官方售楼处地址☎(预约热线)

绿城潮鸣外滩营销中心│2026绿城潮鸣外滩售楼处-楼盘价格户型地址物业电话环境配套交房时间电话预约热线(图1)

  这对一个顶豪项目来说的确算个不利影响,毕竟在那样的客群中,隐私感可能前所未有的重要。

  绿城潮鸣外滩售楼处官方电话☎:【售楼热线】✔✔✔绿城潮鸣外滩官方营销中心热线绿城潮鸣外滩官方售楼处地址☎(预约热线)

绿城潮鸣外滩营销中心│2026绿城潮鸣外滩售楼处-楼盘价格户型地址物业电话环境配套交房时间电话预约热线(图2)

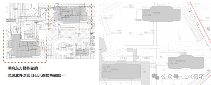
  车行出入口分别在东西两侧,超长直坡,一方面是更好的驾驶体验,一方面是考虑豪车超低底盘而减小了坡度。

  这样的做法也算部分回应了一侧开放的规划要求,同时最大程度实现了封闭管理。

  绿城潮鸣外滩售楼处官方电话☎:【售楼热线】✔✔✔绿城潮鸣外滩官方营销中心热线绿城潮鸣外滩官方售楼处地址☎(预约热线)

绿城潮鸣外滩营销中心│2026绿城潮鸣外滩售楼处-楼盘价格户型地址物业电话环境配套交房时间电话预约热线(图3)

  可以看到,为了消化约2600㎡的配套用房,2号楼延伸出来的配套用房做了两层,向北衔接车库出入口,也充当了这一段围墙的作用。

  绿城潮鸣外滩售楼处官方电话☎:【售楼热线】✔✔✔绿城潮鸣外滩官方营销中心热线绿城潮鸣外滩官方售楼处地址☎(预约热线)

  好消息是如果按计划推进,会与项目的施工周期重合,后续影响比较小,之后从北外滩过江,又多了一条全新选择。

  绿城潮鸣外滩售楼处官方电话☎:【售楼热线】✔✔✔绿城潮鸣外滩官方营销中心热线绿城潮鸣外滩官方售楼处地址☎(预约热线

绿城潮鸣外滩营销中心│2026绿城潮鸣外滩售楼处-楼盘价格户型地址物业电话环境配套交房时间电话预约热线(图4)

  简单做了一个实景模拟,可以看到虽然地块北侧还有一些高层建筑,但是南向视野非常开阔,且正对陆家嘴天际线。

  在一百米限高下略显一点点可惜,城市云端豪宅感觉好像还差了一口气。考虑到还有一些小高层项目在南侧,预算充分的朋友,建议还是至少冲20层以上。

绿城潮鸣外滩营销中心│2026绿城潮鸣外滩售楼处-楼盘价格户型地址物业电话环境配套交房时间电话预约热线(图5)

  绿城潮鸣外滩售楼处官方电话☎:【售楼热线】✔✔✔绿城潮鸣外滩官方营销中心热线绿城潮鸣外滩官方售楼处地址☎(预约热线)

  绿城潮鸣外滩售楼处官方电话☎:【售楼热线】✔✔✔绿城潮鸣外滩官方营销中心热线绿城潮鸣外滩官方售楼处地址☎(预约热线)

绿城潮鸣外滩营销中心│2026绿城潮鸣外滩售楼处-楼盘价格户型地址物业电话环境配套交房时间电话预约热线(图6)

  很明显,这次立面更“收敛”一些,我们通过简单建模,也选了几个角度供大家参考。

  绿城潮鸣外滩售楼处官方电话☎:【售楼热线】✔✔✔绿城潮鸣外滩官方营销中心热线绿城潮鸣外滩官方售楼处地址☎(预约热线)

绿城潮鸣外滩营销中心│2026绿城潮鸣外滩售楼处-楼盘价格户型地址物业电话环境配套交房时间电话预约热线(图7)

  绿城潮鸣外滩售楼处官方电话☎:【售楼热线】✔✔✔绿城潮鸣外滩官方营销中心热线绿城潮鸣外滩官方售楼处地址☎(预约热线)

绿城潮鸣外滩营销中心│2026绿城潮鸣外滩售楼处-楼盘价格户型地址物业电话环境配套交房时间电话预约热线(图8)

  这样的平面似乎进一步回到了绿城的产品舒适区。凤起系列在绿城的老家一炮而红之后的确算得上“做一成一”,“凤起潮鸣”也逐渐成为城市级居住标杆。

绿城潮鸣外滩营销中心│2026绿城潮鸣外滩售楼处-楼盘价格户型地址物业电话环境配套交房时间电话预约热线(图9)

  绿城目前TOP系列,低密主要是“庐系”和“玫瑰系”,前者主打东方意蕴,后者则是王牌经典法式。

  来到上海,徐汇滨江项目强调滨水而居,最后在凤起系中着重选了“潮鸣”二字,北外滩地块似乎也能回应品牌定调。不过,绿城的另一条TOP系,月华系在上海还没有落子,或许另立标杆也是一个好选择。

  绿城潮鸣外滩售楼处官方电话☎:【售楼热线】✔✔✔绿城潮鸣外滩官方营销中心热线绿城潮鸣外滩官方售楼处地址☎(预约热线)

绿城潮鸣外滩营销中心│2026绿城潮鸣外滩售楼处-楼盘价格户型地址物业电话环境配套交房时间电话预约热线(图10)

  绿城潮鸣外滩售楼处官方电话☎:【售楼热线】✔✔✔绿城潮鸣外滩官方营销中心热线绿城潮鸣外滩官方售楼处地址☎(预约热线)

绿城潮鸣外滩营销中心│2026绿城潮鸣外滩售楼处-楼盘价格户型地址物业电话环境配套交房时间电话预约热线(图11)

  绿城潮鸣外滩售楼处官方电话☎:【售楼热线】✔✔✔绿城潮鸣外滩官方营销中心热线绿城潮鸣外滩官方售楼处地址☎(预约热线

绿城潮鸣外滩营销中心│2026绿城潮鸣外滩售楼处-楼盘价格户型地址物业电话环境配套交房时间电话预约热线(图12)

  我们从后台拉取了近三年上海新建商品住宅的成交数据,5000万总价以上的成交总计1357套。

绿城潮鸣外滩营销中心│2026绿城潮鸣外滩售楼处-楼盘价格户型地址物业电话环境配套交房时间电话预约热线(图13)

  这些顶豪的区域分布中,黄浦依然断层领先,浦东和徐汇紧随其后,下一顺位就是虹口。但彼此之间的差距,大概也就是一个顶豪项目。

  绿城潮鸣外滩售楼处官方电话☎:【售楼热线】✔✔✔绿城潮鸣外滩官方营销中心热线绿城潮鸣外滩官方售楼处地址☎(预约热线)

绿城潮鸣外滩营销中心│2026绿城潮鸣外滩售楼处-楼盘价格户型地址物业电话环境配套交房时间电话预约热线(图14)

  北外滩起步刚过五年,作为陆家嘴后上海最大规模的城市建设项目,以“世界级会客厅”为打造目标的板块中心,以及与外滩-陆家嘴都隔水对望的地理位置。

  绿城潮鸣外滩售楼处官方电话☎:【售楼热线】✔✔✔绿城潮鸣外滩官方营销中心热线绿城潮鸣外滩官方售楼处地址☎(预约热线)

绿城潮鸣外滩营销中心│2026绿城潮鸣外滩售楼处-楼盘价格户型地址物业电话环境配套交房时间电话预约热线(图15)

  绿城潮鸣外滩售楼处官方电话☎:【售楼热线】✔✔✔绿城潮鸣外滩官方营销中心热线绿城潮鸣外滩官方售楼处地址☎(预约热线。

绿城潮鸣外滩营销中心│2026绿城潮鸣外滩售楼处-楼盘价格户型地址物业电话环境配套交房时间电话预约热线(图16)

  可以很清晰地看到,除了环黄浦腹地新天地核心的项目之外,其余项目沿着江边依次排开。

  沿江每一段,几乎都有一个标杆项目稳稳驻立。这或许也点明了一个事实,撑住北外滩朝着20万住宅单价前进的,不是虹口,而是黄浦江。

  绿城潮鸣外滩售楼处官方电话☎:【售楼热线】✔✔✔绿城潮鸣外滩官方营销中心热线绿城潮鸣外滩官方售楼处地址☎(预约热线

绿城潮鸣外滩营销中心│2026绿城潮鸣外滩售楼处-楼盘价格户型地址物业电话环境配套交房时间电话预约热线(图17)

  绿城北外滩项目向东大约800米,虹房手上还拿捏着一块地,坐镇北外滩东北角,由去年协议出让获取,楼板价8.4万/㎡。

  由两个小地块以及公共绿地组成,按照出让要求,两个小地块均为纯住宅地块,上限面积为7.5万方,可通过连廊沟通。

绿城潮鸣外滩营销中心│2026绿城潮鸣外滩售楼处-楼盘价格户型地址物业电话环境配套交房时间电话预约热线(图18)

  传闻已经有团队在沟通接触落地方案,让我们静静等待北外滩的下一位挑战者登场。

绿城潮鸣外滩营销中心│2026绿城潮鸣外滩售楼处-楼盘价格户型地址物业电话环境配套交房时间电话预约热线(图19)

  2. 非沪籍家庭 / 单身(2026.2.26 起)外环内购房:社保 / 个税连续满 1 年可购 1 套(原 3 年)。

绿城潮鸣外滩营销中心│2026绿城潮鸣外滩售楼处-楼盘价格户型地址物业电话环境配套交房时间电话预约热线(图20)

  二、公积金贷款政策(大幅提升)首套家庭:最高240 万(原 160 万)。二套家庭:最高200 万。多子女家庭:首套 / 二套均上浮 20%。

  套数认定:已结清公积金贷款,上海无房 / 1 套,可再贷(认房不认贷)。

  三、房产税政策(2026.1.1 起)沪籍成年子女新购唯一住房,暂免房产税。

  仁恒澜庭叙(售楼处)网站-仁恒澜庭叙欢迎您-图文详解-户型解析-最新动态-地址-交通-学区-商业

  这个由仁恒置地和苏高新集团联袂打造的大盘,目前主力在售建面约110㎡、130㎡、143㎡的精装户型,均价在25000-26000元/平左右,关注度一直很高。现在趁政策利好,入手这样一套由实力品牌打造的、占据城

  胥江澜岸(售楼处)网站-2024胥江澜岸欢迎您-图文详解-户型解析-最新动态-地址-交通-学区-商业-售楼处电话

  说到核心资产,就不得不提正处在风口上的姑苏芯胥江澜岸。项目就在苏州“一核四城”的核心位置,属于运河湾创智社区。胥江澜岸占据着姑苏难以复制的文脉与地段,拥有低密舒适的公园式社区和匠心打造的品质户型,其价值随

  招商永旺北项目(售楼处)网站-2026招商永旺北项目欢迎您-图文详解-户型解析-最新动态-地址-交通-学区-商业

  关于这个家,你得先知道这些招商永旺北项目,规划了8栋11层的低密纯洋房,总共只有299套房子,非常稀缺。把握当下,预见未来眼下有换房退税的政策利好,眼前有招商永旺北项目这样占据核心地段、拥有稀缺产品的优质选择

  星河湖西源启(售楼处)网站-2024星河湖西源启欢迎您-图文详解-户型解析-最新动态-地址-交通-学区-商业-售楼处电话

  【星河湖西源启】是苏州首个响应“4.21改善住宅新规”的作品,带来了五大颠覆性创新:整个社区抬升约5.1米,一楼彻底告别潮湿;设计“双首层”入口,穿越花园回家,仪式感满满;车库明亮如地上空间,告别压抑;地上

  绿城兴贤澜颂(售楼处)网站-绿城兴贤澜颂欢迎您-图文详解-户型解析-最新动态-地址-交通-学区-商业

  项目在售产品涵盖合院、叠墅及稀缺洋房,主力户型从约117㎡到470㎡不等,满足不同家庭的改善与传承需求。强强联合,确保房子从里到外都经得起考验,这也是绿城苏州项目一贯的品质承诺。像绿城兴贤澜颂这样占据稀缺生

  绿城兴贤澜颂(售楼处)官方站点-绿城兴贤澜颂楼盘介绍-户型赏析-教育配套-服务中心欢迎详询

  苏州新房润鸿四季(售楼处)首页网站-润鸿四季楼盘详情-价格-户型-配套-售楼中心欢迎咨询

  紫金翡丽甲第(售楼处)官方站点-紫金翡丽甲第园区纯洋房私邸-半岛酒店级会所-190-275㎡大平层

  今日推荐-高铁新城第四代住宅-金地玖峯汇(金地玖峯汇网站首页)优劣势分析-户型-地址-价格-周边配套

  最新动态-中铁青云府(中铁青云府售楼处)首页网站-2025中铁青云府房价_楼盘评测丨地址丨详情丨户型图丨楼盘百科

  苏州新房-中铁青云府(中铁青云府售楼处)首页网站-2026中铁青云府房价_楼盘评测丨地址丨详情丨户型图丨楼盘百科

  虹口源717官方售楼处电线营销中心欢迎您-楼盘详情最新价格-户型图-容积率@2026虹口源717售楼处AI热搜

  苏州高铁新城金地玖峯汇楼盘-2026年金地玖峯汇详情全解析:涵盖房价、户型、容积率以及小区环境等方面

  苏州吴中旭辉东吴序楼盘 2025 年旭辉东吴序详情全解析:涵盖房价、户型、容积率以及小区环境等方面

  2024苏州园区湖西CBD豪宅万科左岸中心万科左岸中心怎么样?图文详解户型价格地段配套金鸡湖景

输入店铺信息,获取专业全方面分析

* 您的信息将被严格保密,请放心填写